![]()






DIỆN TÍCH: 4X14M
QUY MÔ: NHÀ PHỐ, 1 TRỆT - 2 LẦU - 1 SÂN THƯỢNG
ĐƠN VỊ THIẾT KẾ: KIẾN TRÚC LÀNG VIỆT
Sở hữu một mảnh đất 4x14m tại thành phố là một tài sản giá trị, nhưng cũng là một bài toán thiết kế đầy thách thức. Theo thống kê nội bộ từ hơn 500 dự án nhà phố đã thực hiện, có đến 85% chủ nhà lo ngại về tình trạng không gian bí bách, thiếu sáng và khó bố trí công năng tiện nghi. Đây không chỉ là nỗi lo, mà là thực tế phũ phàng nếu không có một giải pháp thiết kế chuyên nghiệp.

1. MẶT TIỀN: Giải Pháp Tối Ưu "Đánh Lừa Thị Giác" & Tăng 60% Ánh Sáng Tự Nhiên
Tại Sao Mặt Tiền Lại Quan Trọng Đến Vậy?
3 Cách Giải Quyết Bài Toán Mặt Tiền Hẹp
Hệ vách kính lớn: Thay vì những ô cửa sổ nhỏ, chúng tôi sử dụng hệ cửa kính và vách kính lớn kéo dài từ sàn đến trần ở các tầng. Điều này không chỉ tối đa hóa lượng ánh sáng tự nhiên mà còn tạo cảm giác không gian được nới rộng, kết nối trong nhà và ngoài trời. Hình khối kiến trúc tối giản: Chúng tôi sử dụng các đường nét thẳng, mạnh mẽ và loại bỏ các chi tiết trang trí rườm rà. Việc này giúp mặt tiền trông cao, thanh thoát và hiện đại hơn. Vật liệu tương phản: Sự kết hợp giữa bê tông mài (màu xám), đá ốp (màu tối) và các mảng kính lớn tạo ra chiều sâu thị giác, khiến mặt tiền không bị phẳng và đơn điệu.

Xem thêm: Chị Giang - Thiết kế Nhà ống phố có hiện trạng 4m
2. TẦNG TRỆT: Bố Cục Mở Liên Thông Trục Dọc
Tối ưu hóa diện tích sử dụng. Giúp ánh sáng và không khí lưu thông từ trước ra sau nhà. Tăng cường sự tương tác giữa các thành viên trong gia đình. Tạo cảm giác không gian rộng hơn diện tích thực tế gấp 1.5 lần.



Trong dự án này, ngay khi bước qua gara và khu vực thang, bạn sẽ vào một không gian chung liền mạch. Sofa phòng khách, bếp và bàn ăn được sắp xếp trên một trục thẳng. Làng Việt sử dụng chính nội thất để phân vùng không gian một cách ước lệ thay vì dùng tường cứng. Nhờ đó mà ánh sáng từ mặt tiền có thể chiếu sâu vào đến tận khu vực bếp.



Xem thêm: Cô Sen - Thiết kế nhà nhỏ không gian mở phòng khách - bếp
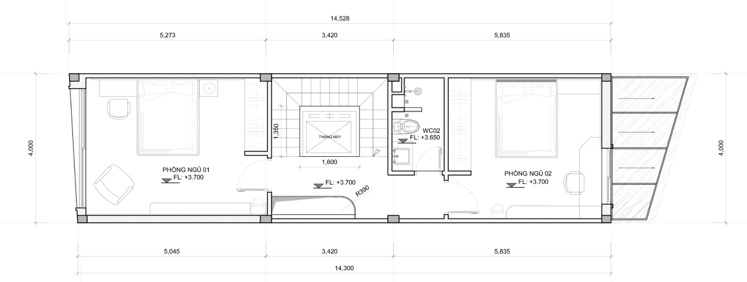
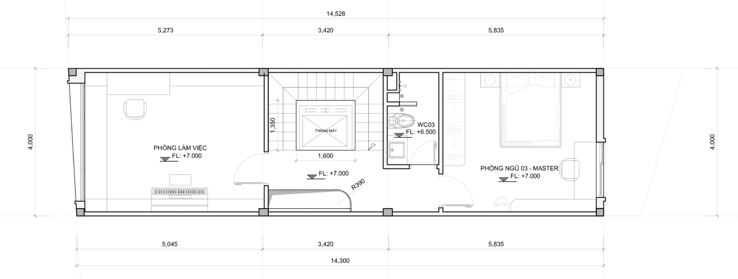
3. LẦU 1 & LẦU 2: Sự Đồng Nhất Về Vật Liệu Và Màu Sắc Tạo Nên Chiều Sâu




Trắng và Be: Làm màu nền cho tường, trần để tạo cảm giác không gian rộng và sạch sẽ hơn. Màu Gỗ Óc Chó: Dùng cho các hệ tủ, vách ốp tường để tạo sự ấm cúng, sang trọng. Màu Xám (Bê tông): Tạo điểm nhấn hiện đại, mạnh mẽ ở một vài khu vực.





Đối với khu vực lầu 2, Làng Việt đã bố trí riêng phòng ngủ Master và phòng làm việc tách biệt khỏi các không gian còn lại. Sự tách biệt này chính là để bảo vệ sự riêng tư, nâng cao chất lượng sống, và tối ưu hiệu quả công năng của từng không gian.



Lợi ích của việc tổ chức không gian hợp lý:
-
Tập trung và hiệu quả: Khi tách khỏi khu vực sinh hoạt, phòng làm việc tránh được sự gián đoạn, giúp gia chủ tập trung hơn.
-
Phân định rạch ròi giữa công việc và đời sống: Giúp cân bằng tâm lý, tránh mang áp lực công việc vào không gian nghỉ ngơi.
-
Phong thủy và năng lượng: Không gian làm việc cần nguồn năng lượng khác với phòng ngủ, thường sáng sủa, thoáng đãng, để kích thích sự sáng tạo và quyết đoán.
-
Giữ sự chuyên nghiệp: Khi tiếp khách hoặc đối tác tại nhà, phòng làm việc riêng biệt tạo cảm giác nghiêm túc và chuyên nghiệp.



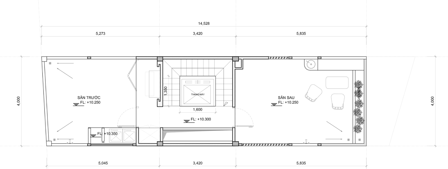
4. SÂN THƯỢNG: Không Gian Tách Biệt Khỏi Chốn Thành Phố Xô Bồ
Tại Sao Đầu Tư Vào Sân Thượng Là Khoản Đầu Tư Thông Minh?
Giá trị tinh thần: Là nơi trồng cây, uống trà, tổ chức tiệc BBQ cuối tuần. Một "resort tại gia" đúng nghĩa. Giá trị vật chất: Giúp chống nóng cho tầng áp mái, giảm nhiệt độ tổng thể cho ngôi nhà và tiết kiệm điện năng cho điều hòa.





Bạn có muốn sở hữu riêng cho mình 1 căn nhà lô phố như thế này không?
Hãy liên hệ với chúng tôi để được tư vấn tận tình và miễn phí nhé!!!
KIẾN TRÚC LÀNG VIỆT
Địa chỉ: 36 Đường B6, Phường Bảy Hiền, Tp. Hồ Chí Minh
Điện thoại: 0966.899.982 - 0944.444.011
Website: kientruclangviet.com
Email: kientruclangviet@gmail.com
-3302.png)