.
HẠNG MỤC CÔNG TRÌNH: NHÀ LÔ PHỐ
ĐỊA ĐIỂM: CỦ CHI
ĐƠN VỊ THỰC HIỆN: KIẾN TRÚC LÀNG VIỆT
___
Mặt Tiền


Sân Trong


Sân Thượng

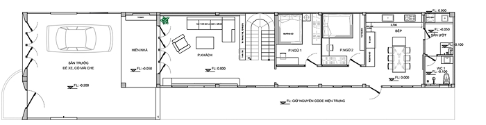
Tầng Trệt

Phòng Khách


Nhà Bếp


Phòng Giặt - Sấy

Nhà Vệ Sinh

Phòng Ngủ Master


Phòng Ngủ Mẹ


Lầu 1

Phòng Thờ

Phòng Ngủ 1

Phòng Ngủ 2

Nhà Vệ Sinh

Bạn có muốn sở hữu riêng cho mình 1 căn nhà lô phố như thế này không?
Hãy liên hệ với chúng tôi để được tư vấn tận tình và miễn phí nhé!!!
KIẾN TRÚC LÀNG VIỆT
Địa chỉ: 36 Đường B6, Phường Bảy Hiền, Tp. Hồ Chí Minh
Điện thoại: 0966.899.982 - 0944.444.011
Website: kientruclangviet.com
Email: kientruclangviet@gmail.com
Bài viết khác
-3302.png)